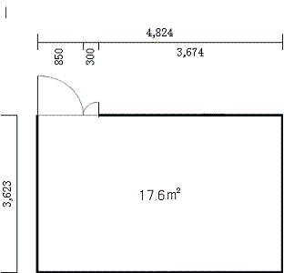
ミニ倉庫間取り例
-保管場所にお悩みの方は是非ご利用ください-

ミニ倉庫:ミニ倉庫間取り例

保管場所にお悩みの方は是非ご利用ください

個人向け

  • 住居リフォームの際の家具などの保管
  • ゴルフバック、スキー用品、
    サーフボードの保管
  • 雛人形、五月人形などの保管
  • 収集したコレクションの保管
  • 夏物、冬物衣類などの保管

企業向け

  • オフィスの移転に伴う備品の保管
  • 商品やサンプル、カタログの保管
  • 現状使用しない事務器や応接セット、
    パーテーション等の保管

間取り例

ミニ倉庫タイプ例
他にも数多くのタイプあります。

大嘉倉庫はお客様の様々な悩みに
お応えいたします。

ミニ倉庫業務2ミニ倉庫業務4

様々なニーズにお応えするミニ倉庫。是非、大嘉倉庫にご相談くださいお問合わせは⇒こちらから

ミニ倉庫:事例紹介は⇒こちらから